当前位置:
首页
>>
公开信息内容
- 索 引 号: F1482016008
- 公开方式:主动公开
- 信息名称:长春市建设项目容积率及建筑面积规划管理规定
- 公开日期:2016-12-23
- 文 号:长规发〔2016〕35号
- 发布机构:市规划局
第一条 为加强城乡规划管理,进一步规范建设项目容积率及建筑面积计算,根据《建筑工程建筑面积计算规范》(GB/T50353-2013)及相关标准,结合本市实际情况,制定本规定。
第二条 除按照国家现行的有关标准规范计算建筑面积外,以下部分的建筑面积应按下列规则计算并计入容积率。
(一)地下室、半地下室
地下室、半地下室应按其结构外围水平面积计算。报审方案文本中应明确标注底板结构层标高,不得按照垫层标注标高。
当建筑物地下室、半地下室的顶板标高高出室外地坪标高1.50米及以上时,其建筑面积应计入容积率;当建筑物地下室、半地下室的顶板标高高出室外地坪标高不足1.50米的,其建筑面积不计入容积率;当建筑物地下室、半地下室周边室外地坪标高不一致时,其建筑面积应按顶板标高超出室外地坪标高1.50米及以上部分的结构外围长度占结构外围周长的比例计入容积率。其中地下室功能为单一性的(如地下车库、地下商场)应整体计算,有明确功能分区的,按照功能分区实际情况计算。
住宅地下室、半地下室周边利用通风采光井或下沉空间以改善地下室室内环境的,围护结构外围至地下室主墙面的最大垂直距离不应超过4.50米,并应南侧设置(附图一)。通风采光井或下沉空间双向设置的,地下室面积计入容积率(附图二)。
(二)住宅
住宅结构层高宜为2.80米不应超过3.30米。当住宅结构层高大于等于3.30米且小于4.50米时,不论层内有无隔层,建筑面积计算值按该层水平投影面积的1.5倍计算;当住宅建筑结构层高大于等于4.50米时,不论层内有无隔层,建筑面积计算值应按层高与2.2的整数倍数与该层水平投影面积的乘积计算。
当住宅起居室(厅)层高在户内通高时不计入超高范围,但该部分面积不得超出本层建筑面积的20%,超过20%按照上述规定计算建筑面积。住宅公共门厅、大堂等不计入超高范围。
(三) 办公建筑
1、办公建筑的公共用房、服务用房、设备用房可根据需要进行设置,但应满足《办公建筑设计规范》的相关要求。
2、办公建筑不得设置任何形式的阳台、露台。
3、办公建筑结构层高不应超过4.50米。当办公建筑结构层高大于等于4.50米时,无论层内有无隔层,建筑面积计算值按层高与2.2的整数倍与该层水平投影面积的乘积计算(倍数小于2时按2计算)。
4、办公建筑的门厅、大厅、中厅等共享空间不计入超高范围。
5、办公建筑内对层高有特殊要求的功能空间(报告厅、多功能厅等)不计入超高范围。
6、设置在办公建筑内的营业性用房,应按商业建筑层高规定计算建筑面积计入容积率。
7、办公建筑的标准层应按层设置公共卫生间。
8、办公建筑宜按结构柱网进行分割,不得设置煤气、燃气等生活设施(因功能需要设置公共食堂等功能空间所需配套的集中厨房除外)。
9、开间小于等于5.40米的办公室用房,其建筑面积总和不应超过本层建筑面积的50%。
10、项目建设单位应严格按照土地出让合同、立项核准备案文件、规划许可等相关部门批准文件组织设计、建设。
11、经市政府批准的商业综合体项目按照市政府相关规定执行。
12、重要办公建筑参考本规定执行,按相关规定要求可适当调整。
(四)商业建筑
1、商业服务网点总建筑面积不应超过300平方米,层数不应超过二层。单层商业服务网点的结构层高不应超过4.50米。当单层商业服务网点的结构层高大于4.50米时按双层计算建筑面积。双层商业服务网点的结构层高的总高不应超过7.50米。
2、商业建筑的结构层高不应超过4.50米。当商业建筑结构层高大于4.50米时,不论层内有无隔层,建筑面积计算值按结构层高与2.2的整数倍与该层水平投影面积的乘积计算。
当商业建筑营业部分为单一空间且超过1000平方米时,其结构层高可适当提高但不应超过6.00米;自选营业厅为单一空间且超过2000平方米时,其结构层高不应超9.00米。
3、商业建筑内对层高有特殊要求的功能空间(影剧院、音乐厅、网球馆、羽毛球馆等)不计入超高范围;门厅、中厅等共享空间不计入超高范围。
(五)阳台及凸(飘)窗
1、主体结构外阳台进深不得超出2.00米(取阳台围护结构外围至外墙外缘的最大垂直距离),其单个水平投影面积不得超出10.00平方米;住宅套型内主体结构外阳台总面积不得超出套型建筑面积的10%(附图三)。
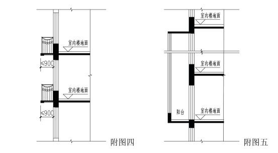
2、与建筑物内不相连通的装饰性阳台,无墙体围护结构,进深不大于0.90米时,不计入建筑面积,否则按阳台计算建筑面积(附图四)。
3、封闭阳台当其永久性上盖高度达到或超过两个自然层,建筑面积按照自然层数分别计算后累加(附图五)。
4、有永久性盖顶的露台应按其顶盖水平投影面积的一半计算建筑面积。
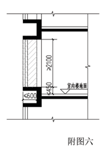
5、窗台与室内楼地面高差在0.45米以下且结构净高在2.10米及以上的凸(飘)窗,应按其维护结构外围水平面积计算1/2面积。凸(飘)窗凸出建筑外墙面不得超过0.60米,并应在申报方案文本中提供凸(飘)窗详图(附图六)。
6、按照本市的气候特点及城市景观要求,阳台形式以封闭式为主,严格控制开敞式阳台及露台。开发建设单位在商品房销售中应明确告知开敞式阳台不允许封闭。
(六)坡屋顶空间
1、坡屋顶空间与建筑顶层未采用实体楼板分割的,应按本规定对层高的要求计算建筑面积。
2、不利用坡屋顶空间时,坡屋顶空间内不得设置非承重结构墙体分割。检修口只应设置在楼梯间、电梯间等公共空间内。
3、公共建筑有特殊造型需要的建筑坡屋顶空间可酌情处理。
(七)主体结构外的空调室外机搁板(箱)不计算建筑面积,单独布置的不得超过1.00平方米,集中布置的不得超过3.00平方米,住宅建筑空调外置搁板个数不得超过生活居住空间数量。
(八)工业
建筑物结构层高超过8米时,在计算容积率时该层建筑面积加倍计算。
第三条 建设工程设计不得虚构设计建筑使用性质及功能。
第四条 在自本规定实施后,建设单位(个人)送审建设项目建设工程设计方案时,均应按本规定计算建筑面积及容积率。
第五条 建设单位(个人)、设计单位不执行本规定及相关技术规范,在申报建筑设计方案时虚报建筑面积并进行虚假宣传的,按有关法律规定严肃处理,并记入不良信誉档案。
第六条 对本规定及其他标准之外的由特殊设计要求的或规划主管部门在审核时提出异议的,由市规委会专委会进行专题讨论提出意见,本规定由英国365bet网址负责解释。
第七条 本规定自公布之日起实施。
英国365bet网址
2016年12月23日
规范性文件编号:201602029
![]()
英国365bet网址办公室 2016年12月23日印发
返回首页
政务邮箱
局长信箱
咨询建议
网站导航
关于我们